
发布时间:2015-03-30 08:07:34 来源:浩爽 作者:浩爽

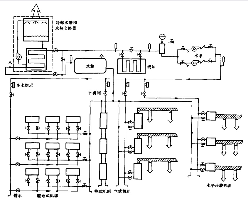
本文标题:冷库(冷冻冷藏库)有哪几种结构
转载请注明出处:浩爽制冷http://m.cn-heater.cn/lkzs/1577.html
下一篇:什么是高温库、低温库和气调库?
杭州盒马鲜生48000立方大型生鲜电商物流冷库建设方案
京东-灌南冷库改造采购项目(电商物流园)
170000m3生鲜电商冷库叮咚买菜冷链配送前置仓冷库项目
江西萍乡中农批11000平方米农产品物流冷库工程建造方案
湖南宇培7150㎡冷链物流冷藏库(低温冷库)工程案例
深圳望家欢农产品生鲜冷链物流配送冷库建设项目
雅玛多中国物流大型物流冷库己完工
海底捞全国各门店中央厨房冷库建造案例
国药集团兰州生物制药30000m3血液制品冷库建设精细化方案
上海荣庆物流建造20000立方低温冷库工程案例
西郊国际农产品交易中心2500吨大型果蔬冷库完工
中国供销启东农产品国际物流港22600m3冷库制冷与保温工程案例
江苏太仓远洋物流二氧化碳冷库工程建造项目
四川遂宁火糊涂匠火锅餐饮冷冻库建造工程案例
上海赤坂亭餐饮公司建造1400平方米食品配送冷库建造案例
上海席永记餐饮的1500立方米餐饮冷藏库建造案例
广州萨莉亚餐饮企业-25℃低温食材存储冷库工程案例
北京中央民族大学附属中学食堂双温冷库建造案例
湖北神地农业的万平米鲜鸡蛋气调库建造案例
上海天使之橙2000平米橙子保鲜库工程建造案例
成都益民生鲜菜市攀成钢店蔬菜保鲜冷库工程案例
湖北鲜果园建造气调保鲜冷库工程建造案例
周黑鸭食品加工厂大型冷库工程建造案例
华润三九药业1300立方米药品阴凉冷库工程设计建造方案
中国医学科学院医学生物学研究所昆明创新疫苗冷库建设方案
国药兰州生物制品研究所7000m3生物新冠疫苗冷库设计建造方案
康乐卫士1300平米生物疫苗制剂车间冷库设计建造方案
成都生物制品研究所1100立方米狂犬病疫苗冷库建设精细化方案
山东绿叶制药6900立方米高架阴凉库建设方案
成都康诺亚一桥生物科技有限公司医药冷库建设方案
地址:上海市松江区民强路
地址:北京经济技术开发区
地址:湖北武汉汉阳区
地址:浙江省杭州市江干区
地址:成都市锦江区
地址:乌鲁木齐市水磨沟区
地址:江苏省南京市鼓楼区